5 szoba
206 m2
Telek mérete: 273 m2
Tégla
Gáz (cirkó)
Leírás
Sokoldalúan hasznosítható, jó adottságokkal rendelkező, belvárosi családi ház eladó Szombathelyen.
ALKALMAS - Több generáció számára - 2 lakás, külön bejárattal, így a családtagok teljesen elszeparáltan élhetnek. Együtt, de mégis külön!
ALKALMAS - Befektetőknek, Mivel a 3szint, külön - külön is kiadható (2 db lakásnak + 1 db üzleti célra is)! Minden egység saját villanyórával, vízórával felszerelt!
ALKALMAS - Saját célra, ha otthonról szeretnénk a vállalkozásunkat üzemeltetni. Pl könyvelőiroda, virágbolt, de bármi egyéb üzleti tevékenységnek remek adottságú, a 66 nm-es alagsori terület.
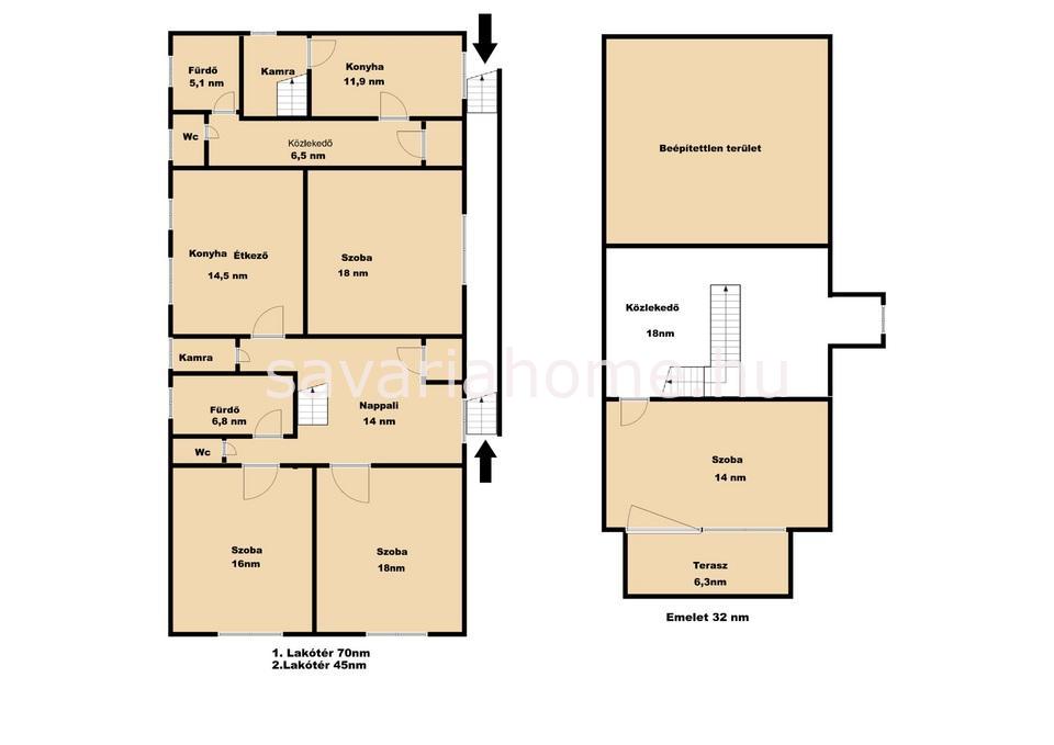
- A szuterén szint 66nm-es,3 külön helyiségből áll, korábban üzleti céllal volt kiadva. Ez a helyiség az udvaron keresztül, vagy a kapuszínből is megközelíthető.
- A középső szint egy 68nm,-es lakás, melynek felújítását már megkezdték. A 2 db nagy szoba és a fürdőszoba már elkészült, ablakcsere, új burkolatok, friss festés. új radiátorok vannak. A konyha-étkező még befejezésre vár.
- Az emeleti szint: A tulajdonosok jelenlegi lakrésze, jó állapotban, igényesen felújítva. A 62nm-en, tágas nappali- étkező-konyha, 2 db szoba, fürdőszoba és külön Wc. helyiségekkel. Aki szereti a jó hangulatú, szép otthonokat, ebben a lakrészben teljes mértékben megtalálja a számítását! Reflexiós, fényvisszaverő üvegekkel beszerelt szép ablakok és légkondi is segít az ideális hőmérséklet megteremtésében.
- A ház két oldalról, két utcáról is megközelíthető.
- Közvetlenül a ház mellett található hangulatos, árnyas, fedett terasz, kedvelt időtöltési helyszín a jelenlegi családtagok számára is!
- Az udvarban található egy melléképület, amely jelenleg bérbe van adva, - tehát már pénzt termel!!! - de kisebb ráfordítással garázsnak is kitűnően alkalmassá tehető.
Szombathely belvárosában, jó adottságú, több lehetőséget is magában rejtő ingatlan!
Ha ilyen típust keres, várom hívását!
Irányár: 94,9M Ft
Érdeklődni: Némethné Szendrői Tímea 06-30-364-1073
Részletek
- Ingatlan azonosító: SH3461
- Ár: 87 500 000 Ft
- Ingatlan típusa: Családi ház
- Szobák száma: 5
- Alapterület: 206 m2
- Telek mérete: 273 m2
- Város: Szombathely, belváros
Hasonló hirdetések
Ár: 48 900 000 Ft
Ár: 55 700 000 Ft
Ár: 79 000 000 Ft
Ár: 115 000 000 Ft
Ár: 100 560 000 Ft
Ár: 77 460 000 Ft
Ár: 66 680 000 Ft
Kétlakrészes családi ház, mode...
- Alapterület: 177 m2
- Szobák száma: 6
Ár: 149 990 000 Ft
Ár: 139 000 000 Ft
Exlkuzív megjelenésű családi h...
- Alapterület: 170 m2
- Szobák száma: 4
Ár: 169 000 000 Ft
Ár: 82 900 000 Ft
Szombathely kedvelt utcájában,...
- Alapterület: 85 m2
- Szobák száma: 4
Ár: 59 900 000 Ft
Ár: 70 210 000 Ft
Ár: 89 500 000 Ft
Ár: 80 700 000 Ft
Ár: 109 900 000 Ft
Ár: 15 000 000 Ft
Ár: 67 000 000 Ft
Ár: 61 000 000 Ft
Ár: 54 400 000 Ft
Tulajdonságok
- 5 szoba
- 206 m2
- Telek mérete: 273 m2
- Tégla
- Gáz (cirkó)
Egyéb
- Garázs
- Terasz
- Kertkapcsolat
- Udvari parkoló
- Önálló kert
Extrák
- Klíma
tanácsadó
Némethné Szendrői Tímea
+36 70 364 1073
szendroi.timea@savariahome.hu




































